
Plan Specs


Get your Floor Plans + Costings Package for ourTakahēCustom New Build
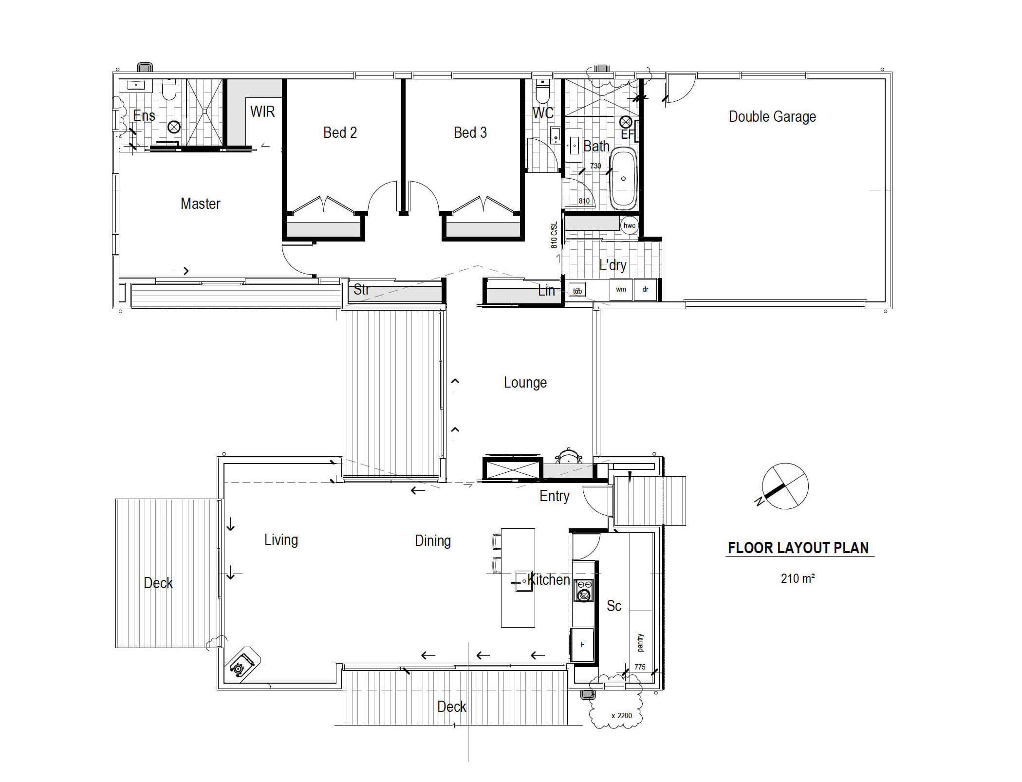
Enter your full name, phone and email address below, and we'll send you a comprehensive package that includes detailed floor plans + an extensive cost breakdown for the
Takahē
Custom New Build
Plus, for a limited time, when you request a package and choose us to build the
Takahē
Custom New Build
– you’ll receive a complimentary interior design consultation — so don’t miss out, start the process today!
Because this plan requires a few custom details, we’ll put together a tailored package just for you. The easiest way to get started is with a free 30‑minute, no‑obligation consultation, where we can discuss your ideas and walk you through the options. From there, we’ll prepare the customised floor plans and costings to fit your needs.
Get My Custom PlanYour minor dwelling questions, answered
Why choose a minor dwelling over a modular home?
Our minor dwellings are built on-site, allowing us to access and utilise steep sections with challenging access. This means we can make the most of large land parcels that might not have been considered ideal for minor dwellings due to the landscape.
Can I build a minor dwelling on my property?
The possibility of building a minor dwelling depends on several factors, including your location and the specific zoning regulations in your area. Generally, minor dwellings must not exceed 60-65 square meters, and different zones have different rules regarding their placement. Learn more in our guide to building a minor dwelling.
How much does a minor dwelling cost?
The cost of a minor dwelling can vary, but industry standards suggest a range between $3,000 to $4,000 per square meter, which translates to approximately $200,000 to $300,000 depending on various factors. We have architecturally designed Minor Dwelling packages that include detailed floor plans and an extensive cost breakdowns, click here to view the plans.
Do you provide a warranty for your minor dwelling builds?
Yes, we stand by our workmanship and have no hesitation in providing a warranty for our work. All of our new builds come with a ten-year residential guarantee.
Do I need a licensed or certified builder to build my minor dwelling?
To undertake any restricted building works in New Zealand, you need to be a Licensed Building Practitioner (LBP). The majority of building work (such as new builds and anything requiring a council permit) requires this. Learn about the differences between licensed and certified builders in our article here.




